Skip to content
Projets
Services
Équipe
Contact
Projets
Services
Équipe
Contact
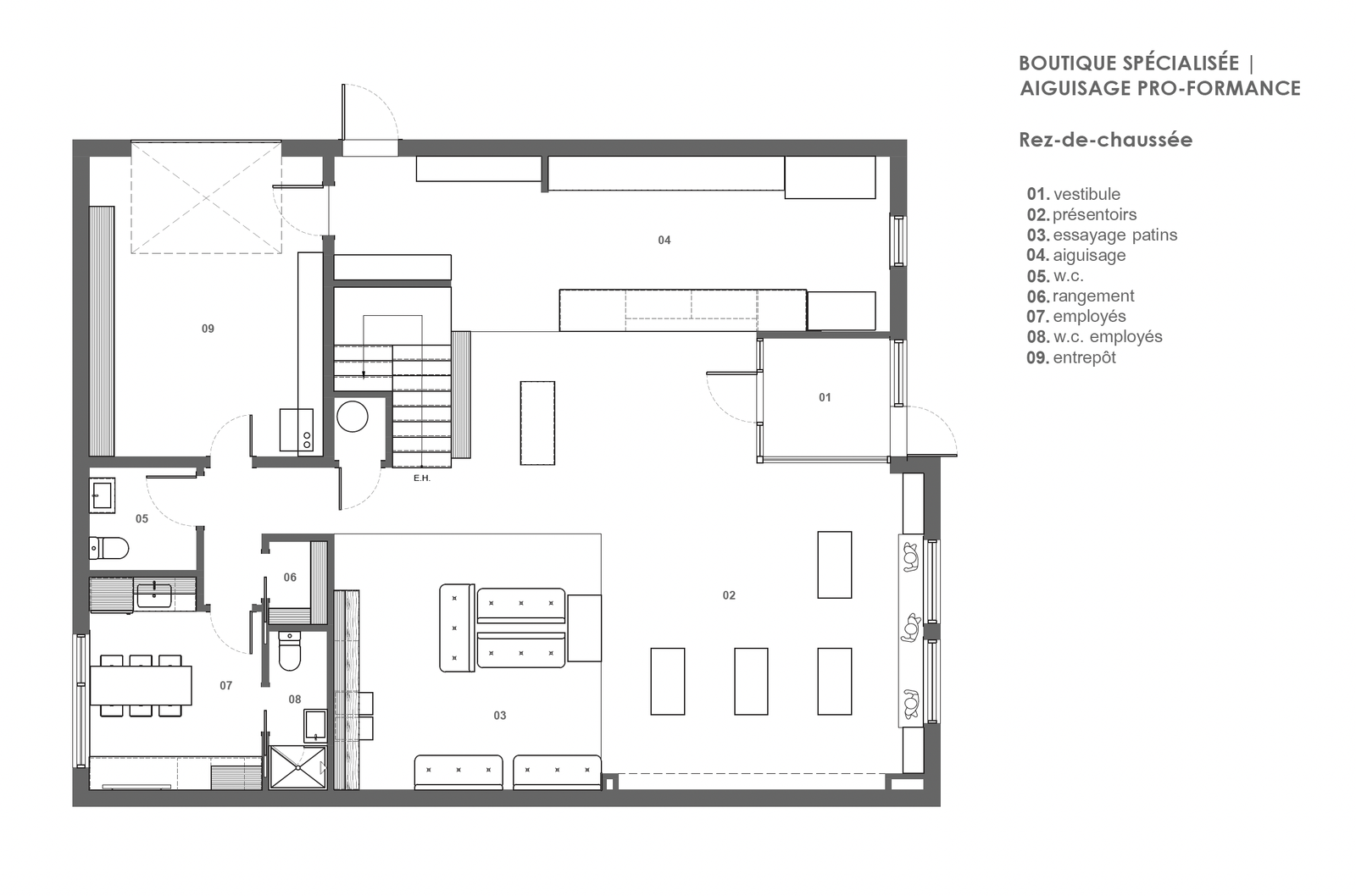
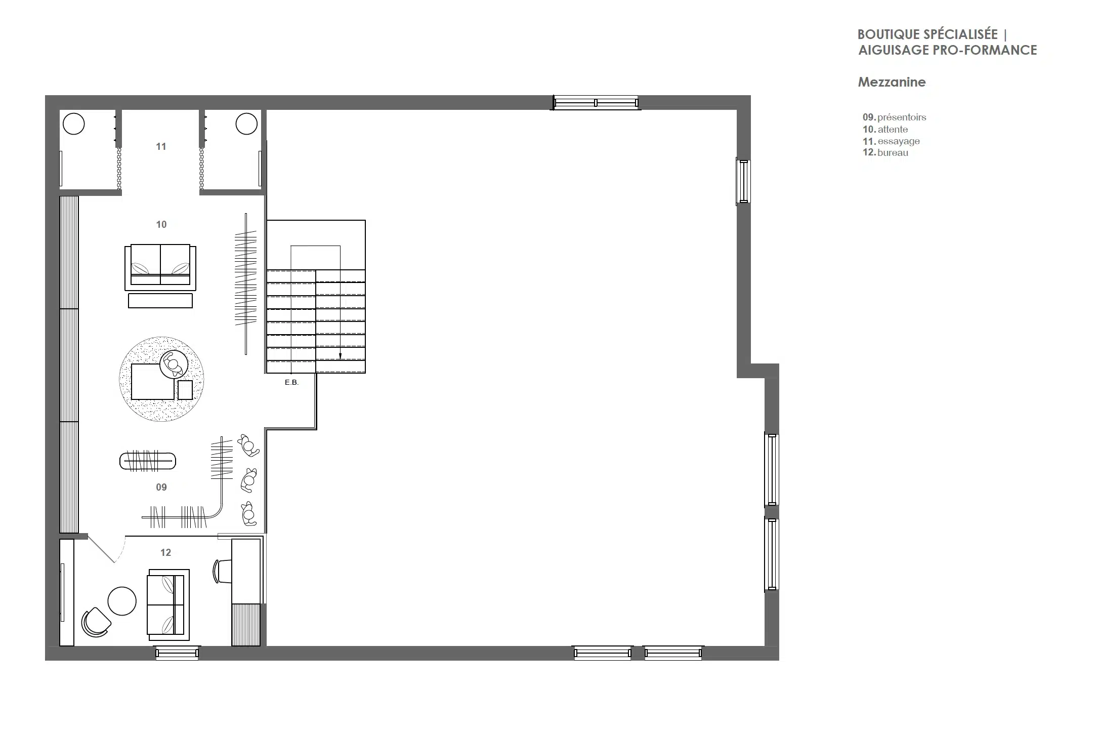
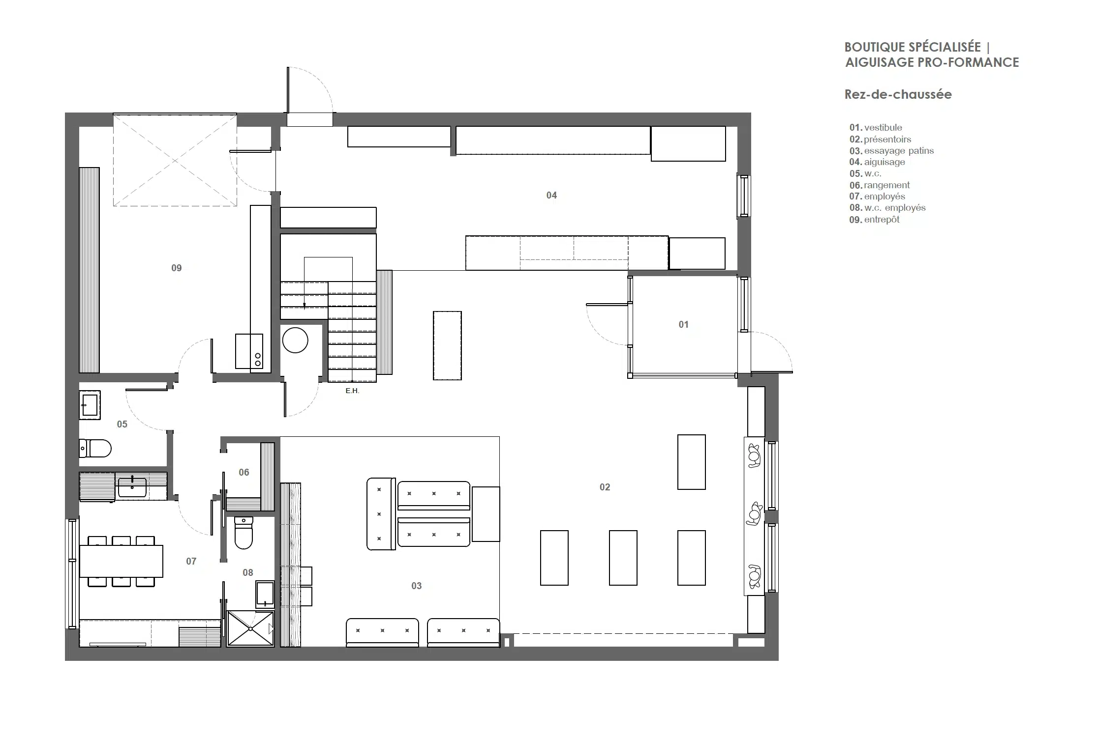
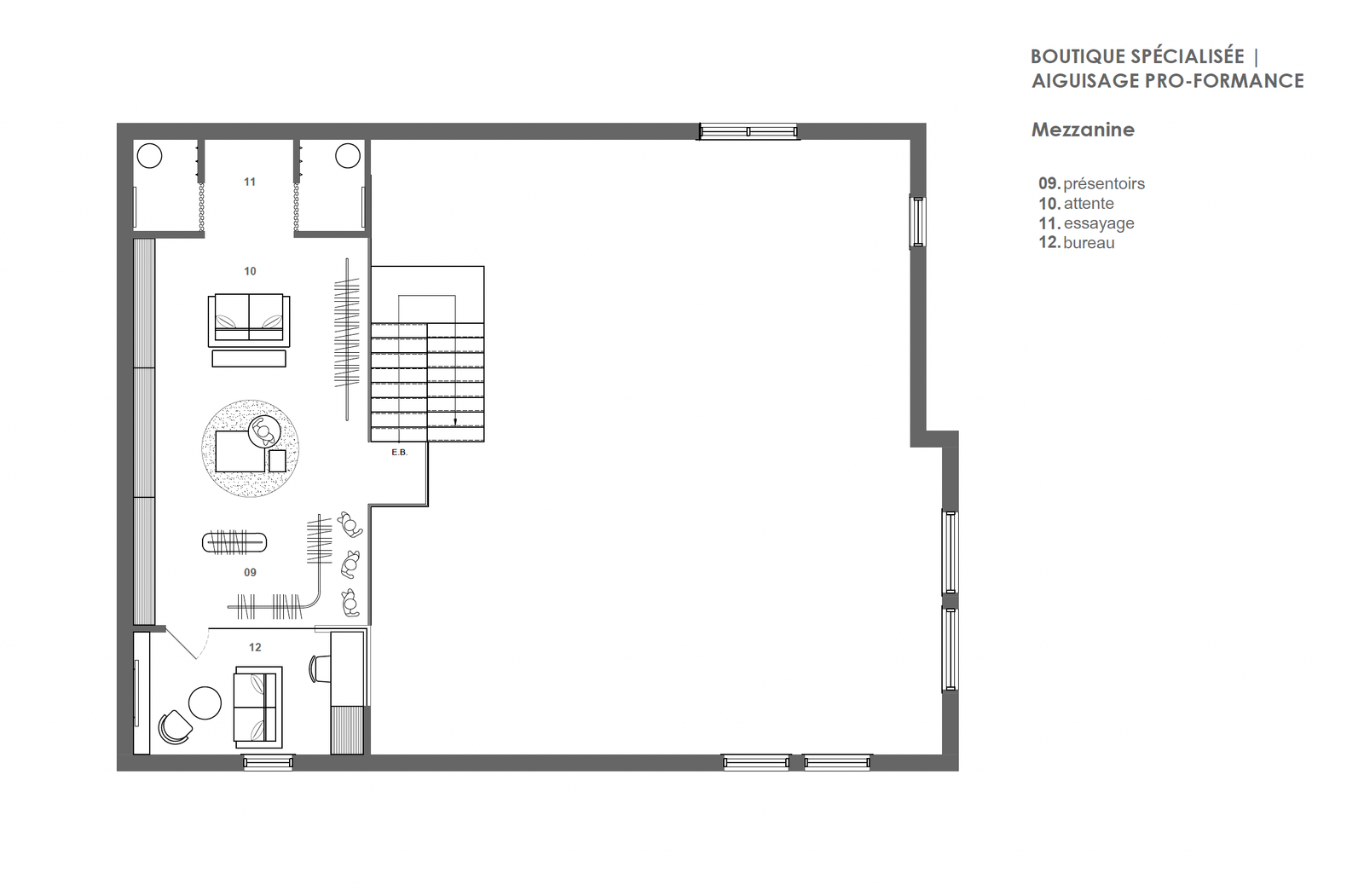
Aiguisage Pro-Formance
Commercial
Boisbriand
Projets
Services
Équipe
Contact
(438) 886-1452
info@canvadesign.ca
Instagram
Facebook